











品牌故事及其发展历程
北京雅仕格机电科技有限公司(英文简称Arshcoo),国家建筑机电工程抗震设计与产品研制商。2014年成立于北京,专业从事机电工程抗震支撑系统、建筑成品装配式支撑系统、机电工程绝热支撑系统的研发、设计与生产,并提供技术安装服务。
雅仕格科技通过大量的系统应用测试,自主开发了《雅仕格机电抗震支撑系统设计软件》,秉承 “精于抗震、保护家园、服务至上”的经营理念。目前在建筑机电抗震领域,凭借完备的深化设计方案和产品配套, 能为政府项目、大型场馆、商业地产、城市地下综合管廊、轨道交通、工业配套等多个应用领域提供坚实可靠的保护。
雅仕格科技核心团队在建筑机电行业里拥有广泛的社会资源, 已成为中国市场最具竞争力的品牌且处于行业领导地位, 并在目前中国建筑机电工程领域具备非常丰富的项目经验,中标及在建的项目有:白云国际机场T2航站楼、珠海国际航展中心主展馆、三亚国际财经论坛会议会展中心、海南亚特兰蒂斯度假酒店、保利三亚瑰丽酒店、南宁国际会展中心二期、长沙国际会展中心、长沙火车南站东扩项目等众多项目并为此提供了优质的系统设计、产品和服务。
勇于担当、继往开来,雅仕格科技将继续在中国建筑机电抗震领域辛勤探索,用精湛的技术、优质的产品、优良的服务态度面向中国市场,不辜负客户对雅仕格科技的信任和支持。
雅仕格荣誉榜一览
雅仕格部分经典抗震业绩
广州白云国际机场交通枢纽中心
广州白云国际机场T2航站楼
珠海国际航展中心主展馆
遵义奥体中心
遵义新浦大数据中心
江门国际会展中心
阳江核电站
山西国药
海南亚特兰蒂斯度假酒店(七星级)
三亚国际财经论坛会议会展中心
三亚凤凰机场交通中心
重庆仙桃谷数据中心
重庆中美协同大数据学院
江门滨江体育中心一场两馆
菲亚特克莱斯勒汽车(广州)工厂
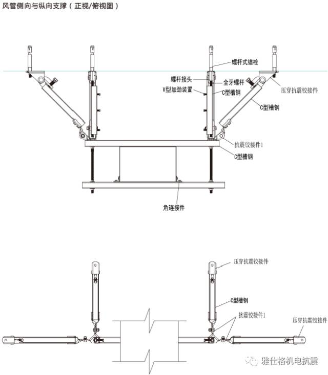
雅仕格抗震系统大样图